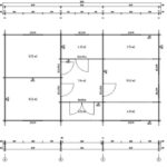
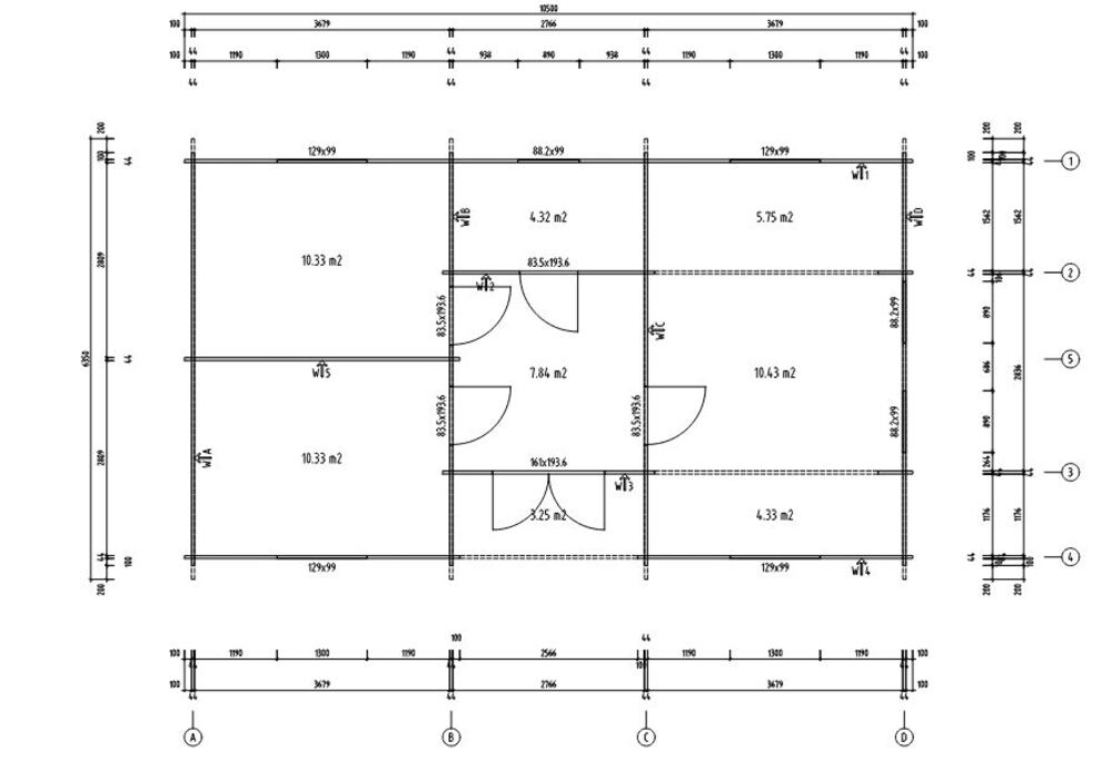
SKU: FR44-T06552
Width: 1050 cm / 34.4 ft
Length: 635 cm / 20.8 ft
Area: 57 m² / 613.5 ft
$36,243.53
Installation Manual