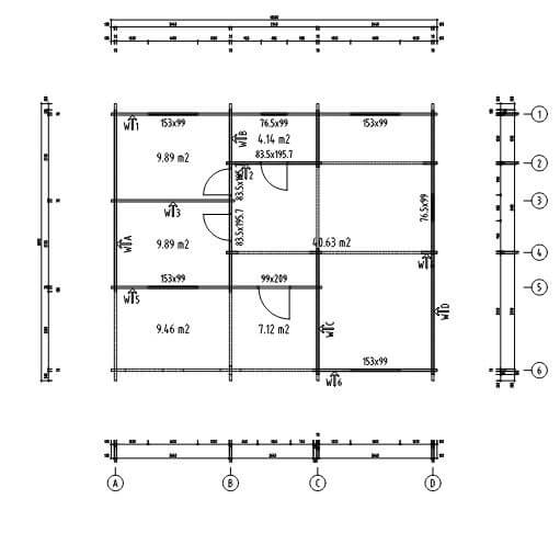
The Meadowbrook 81.1 m²

The Meadowbrook 81.1 m²

SKU: T06645

Width: 1050 cm / 34.4 ft

Length: 892 cm / 29.3 ft

Area: 81 m² / 873.0 ft

Category

$77,491.56

0
    0
    Your Cart
    Your cart is emptyReturn to Shop