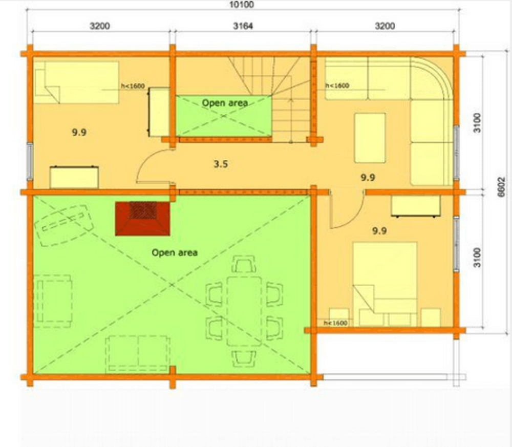
SKU: PM114-10480
Width: 1040 cm / 34.1 ft
Length: 800 cm / 26.2 ft
Area: 96 m² / 1035.5 ft
$201,286.03