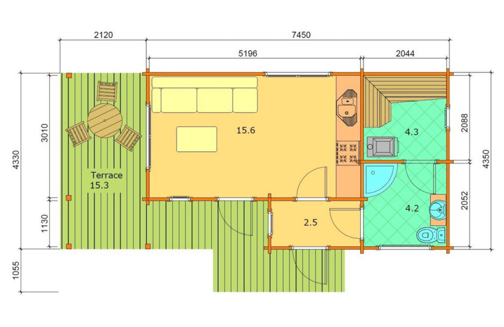
Roberta 26.6 m²

Roberta 26.6 m²

SKU: PM70-7746

Width: 600 cm / 19.7 ft

Length: 420 cm / 13.8 ft

Area: 27 m² / 286.3 ft

Category

$45,601.89

0
    0
    Your Cart
    Your cart is emptyReturn to Shop